Construction:
Instalation:
Information: Adapters can be manufactured in other diameters by choice.
Colours: Metal
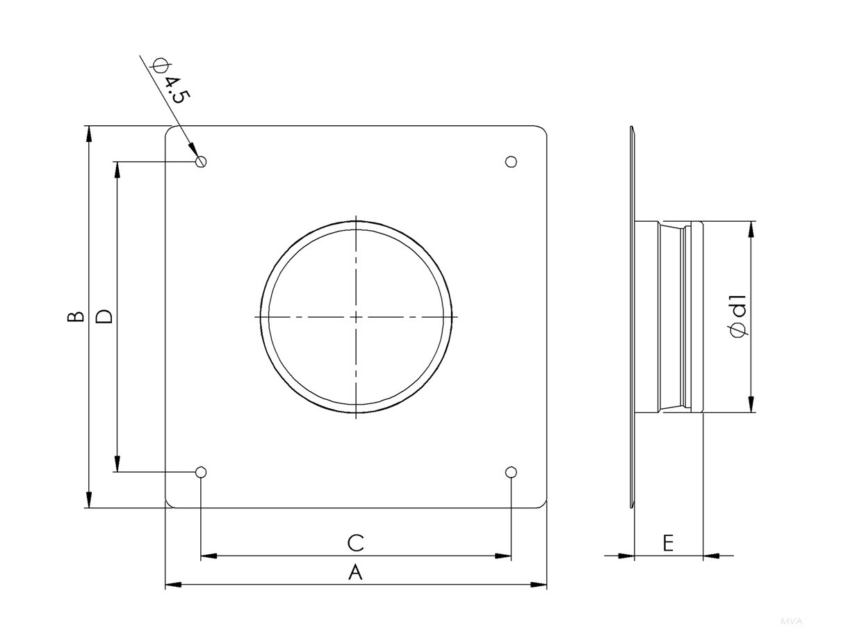
MVA male fitting spigot plates are made from galvanized steel sheet. Intended to be connected to air ducts of various sizes, starting from Ø80mm up to Ø250mm connection. Other sizes and colors are available on request. Designed to mount onto walls, ceilings and panels to terminate ducting. Square mounting wall plate with centrally mounted hole with pre-drilled mounting holes for easy fitting.
| Description | |
|---|---|
MVA100
|
metal ventilation adapter Ø100mm, without gasket
|
MVA125
|
metal ventilation adapter Ø125mm, without gasket
|
MVA150
|
metal ventilation adapter Ø150mm, without gasket
|
MVA160
|
metal ventilation adapter Ø160mm, without gasket
|
MVA180
|
metal ventilation adapter Ø180mm, without gasket
|
MVA200
|
metal ventilation adapter Ø200mm, without gasket
|
MVA250
|
metal ventilation adapter Ø250mm, without gasket
|
MVA315
|
metal ventilation adapter Ø315mm, without gasket
|
MVA80
|
metal ventilation adapter Ø80mm, without gasket
|

| Type |
A [mm] |
B [mm] |
C [mm] |
D [mm] |
Ød1 nom [mm] |
E [mm] |
m [kg] |
| MVA80 | 160 | 160 | 130 | 130 | 80 | 30 | 0,16 |
| MVA100 | 225 | 225 | 195 | 195 | 100 | 30 | 0,29 |
| MVA125 | 225 | 225 | 195 | 195 | 125 | 30 | 0,29 |
| MVA150 | 255 | 255 | 225 | 225 | 150 | 30 | 0,36 |
| MVA160 | 255 | 255 | 225 | 225 | 160 | 30 | 0,36 |
| MVA180 | 320 | 320 | 290 | 290 | 180 | 30 | 0,55 |
| MVA200 | 320 | 320 | 290 | 290 | 200 | 30 | 0,53 |
| MVA250 | 320 | 320 | 290 | 290 | 250 | 40 | 0,50 |
| MVA315 | 380 | 380 | 350 | 350 | 315 | 40 | 0,63 |