Construction:
Installation:
Colors: White RAL 9016, metallic, stainless steel
EUROPLAST multi-purpose metal plates RLP are designed as an alternative to metal inspection hatches. They are made from steel or other metals. Depending on the model, they are coated with a polymer coating and are resistant to high humidity and mechanical damage.
| Description | Width | Height | |
|---|---|---|---|
RLP1515Zn
|
metal universal plate, 150x150mm, galvanized
|
150 mm | 150 mm |
RLP1515i
|
metal universal plate, 150x150mm, inox
|
150 mm | 150 mm |
RLP1515
|
metal universal plate, 150x150mm, white
|
150 mm | 150 mm |
RLP2020Zn
|
metal universal plate, 200x200mm, galvanized
|
200 mm | 200 mm |
RLP2020i
|
metal universal plate, 200x200mm, inox
|
200 mm | 200 mm |
RLP2020
|
metal universal plate, 200x200mm, white
|
200 mm | 200 mm |
RLP2626Zn
|
metal universal plate, 260x260mm, galvanized
|
260 mm | 260 mm |
RLP2626i
|
metal universal plate, 260x260mm, inox
|
260 mm | 260 mm |
RLP2626
|
metal universal plate, 260x260mm, white
|
260 mm | 260 mm |
RLP3636Zn
|
metal universal plate, 360x360mm, galvanized
|
360 mm | 360 mm |

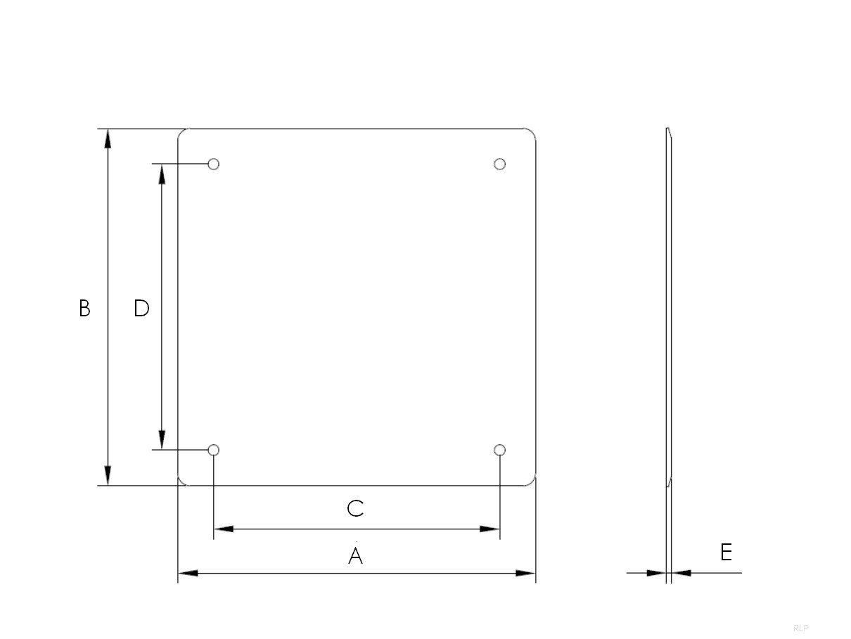
| Type | A [mm] |
B [mm] |
C [mm] |
D [mm] |
E [mm] |
m [kg] |
| RLP1515 | 150 | 150 | 120 | 120 | 2 | 0,13 |
| RLP2020 | 200 | 200 | 170 | 170 | 2 | 0,23 |
| RLP2626 | 260 | 260 | 230 | 230 | 2 | 0,40 |
| RLP3636 | 360 | 360 | 330 | 330 | 2 | 0,76 |
| RLP4646 | 460 | 460 | 430 | 430 | 2 | 1,2 |
| RLP5656 | 560 | 560 | 530 | 530 | 2 | 1,9 |
| Modifications |
| RLPxxxx – white RAL9016 polymer coating |
| RLPxxxxZn – galvanized steel, unpainted |
| RLPxxxxi – stainless steel, unpainted |