Construction:
Installation:
Colors: White
EUROPLAST flush-mounted metal inspection hatches ESLM allow easy access to built-in communications. These hatches are a low-profile access solution for walls and ceilings, becoming almost invisible after installation. The panels are designed for interior finishing applications, coated with polymer paint coating that characterized by resistance to moisture and mechanical damage.
The hatches are fully installed from the room side, with no need for access from inside the wall cavity. ESLM hatches are equipped with a perforated metal frame that ensures better adhesion to plaster and joint compounds, as well as a raised edge profile for creating precise and straight finishing lines.
| Description | Width | Height | Depth | |
|---|---|---|---|---|
ESLM1515
|
inspection hatch, metal, flush-mounted, 150x150mm, white
|
150 mm | 150 mm | 27 mm |
ESLM2020
|
inspection hatch, metal, flush-mounted, 200x200mm, white
|
200 mm | 200 mm | 27 mm |
ESLM2030
|
inspection hatch, metal, flush-mounted, 200x300mm, white
|
200 mm | 300 mm | 27 mm |
ESLM2550
|
inspection hatch, metal, flush-mounted, 250x500mm, white
|
250 mm | 500 mm | 27 mm |
ESLM3020
|
inspection hatch, metal, flush-mounted, 300x200mm, white
|
300 mm | 200 mm | 27 mm |
ESLM3030
|
inspection hatch, metal, flush-mounted, 300x300mm, white
|
300 mm | 300 mm | 27 mm |
ESLM4030
|
inspection hatch, metal, flush-mounted, 400x300mm, white
|
400 mm | 300 mm | 27 mm |
ESLM4040
|
inspection hatch, metal, flush-mounted, 400x400mm, white
|
400 mm | 400 mm | 27 mm |
ESLM4060
|
inspection hatch, metal, flush-mounted, 400x600mm, white
|
400 mm | 600 mm | 27 mm |
ESLM5050
|
inspection hatch, metal, flush-mounted, 500x500mm, white
|
500 mm | 500 mm | 27 mm |

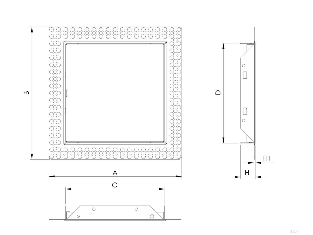
| Type | A [mm] |
B [mm] |
C [mm] |
D [mm] |
H [mm] |
H1 [mm] |
m [kg] |
| ESLM1515 | 185 | 185 | 127 | 127 | 27 | 2,2 | 0,25 |
| ESLM2020 | 235 | 235 | 177 | 177 | 27 | 2,2 | 0,40 |
| ESLM2030 | 235 | 335 | 177 | 277 | 27 | 2,2 | 0,56 |
| ESLM2550 | 285 | 535 | 227 | 477 | 27 | 2,2 | 1,06 |
| ESLM3020 | 335 | 235 | 277 | 177 | 27 | 2,2 | 0,56 |
| ESLM3030 | 335 | 335 | 277 | 277 | 27 | 2,2 | 0,78 |
| ESLM4030 | 435 | 335 | 377 | 277 | 27 | 2,2 | 1,01 |
| ESLM4040 | 435 | 435 | 377 | 377 | 27 | 2,2 | 1,28 |
| ESLM4060 | 435 | 635 | 377 | 577 | 27 | 2,2 | 1,83 |
| ESLM5050 | 535 | 535 | 477 | 477 | 27 | 2,2 | 1,89 |
| ESLM6060 | 635 | 635 | 577 | 577 | 27 | 2,2 | 2,61 |